Wollstonecraft – Platinum Position, Freestanding Federation abundant with grace & style
13 Milner Crescent (dual street access and garaging via 8 Selwyn Street)

- Features
- Description
- Method of sale
- Useful Links
- Floor plans
- Location map
- Aerial map
- App. 750sqm light filled, landscaped & private
- Dual street access - double auto lock up garage
- Fully renovated Federation
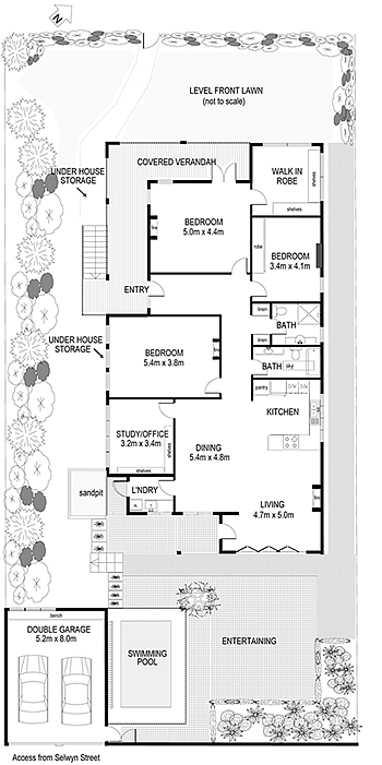
- 3 double bedrooms/2 marble bathrooms
- Study/Home Office/Guest Bed
- All new Smeg kitchen
- Open plan living and dining
- Heated pool terrace/entertaining
- Walk rail plus much more
- Flexible/delayed settlement available
Peerless Privacy + Double Garage + Heated Pool
Around 750sqm professionally landscaped prime land underpins this sound residential investment set on the high side of this tightly held and sought after location. Enjoying a gracious streetscape with an array of Federation and post Victorian architecture the ambience of charm is far removed from any hint of apartment blocks making this light filled, private position a rare find indeed.
The fully renovated single level home boasts light and space with magazine quality and feel complimenting generous proportions. Seamless flow and relaxed lifestyle is enhanced with open plan living, dining which extends to stunning rear entertaining featuring a sandstone pool terrace and manicured gardens. Covered return verandahs and a level grassed yard complete the perfect picture.
Accommodation includes 3 double bedrooms (master with dressing room) plus study/home office/4th or Guest bedroom. With zoning allowing home office the utility for work from home professionals brings infinite scope when combined with the convenient ‘stroll rail’ location between Wollstonecraft and Crows Nest.
Many period features of the home have been retained including Leadlight entry, Kauri polished timber floors, French doors, Casement windows, High Patterned ceilings, Fireplaces and Slate roof – all well maintained and presented. A stunning new kitchen and two marble bathrooms add a slick and modern touch to suit busy professionals and the many additional features ensure the home will meet the lifestyle requirements of the most discerning purchasers incl. Wine Cellar, Halogen Lighting, Ducted Gas Central Heating, Automated Double Lock Up Garage and Workshop area, Fully tiled & Heated Saltwater Pool, built in storage and wine cellar, rainwater tank and more.
Just move in and enjoy. However, if you’d like to take advantage of the large land and further capitalise the property to let it grow with your family there is plenty of scope to extend upstairs subject to Council approval.
Wollstonecraft is one of Sydney’s most prestigious harbourside suburbs on the leafy lower North Shore yet just 5km’s from Sydney CBD. Your family lifestyle wants will easily match with your professional needs with ease of commute via rail or buses and close proximity to City, North Sydney, Crows Nest or St Leonards. With a plethora of quality public and private schools, the harbour playground at your fingertips and the cosmopolitan restaurant scene so close this truly is the epitome of Sydney living.
For Sale
New Exclusive Listing
FOR SALE by private treaty
Inspect as advertised or by appt.
Contact: Mark Allan 0419 777500, +61 2 94550322
Below are some useful links for local services and locations





